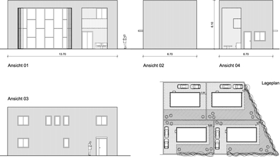
AUSSENANSICHT
 
 
 
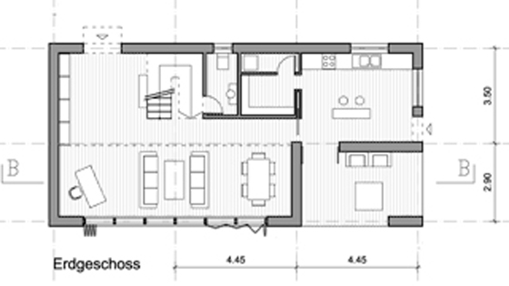
ENTWURF STADTHAUS
Kompakte Bauweise vereint mit hochwertiger Architektur auf 180 Quadratmetern